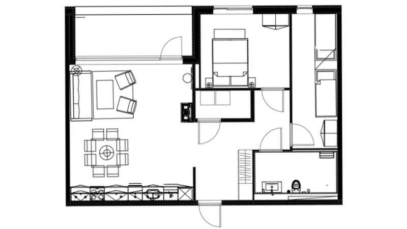
Skistar Lodge Hemsedal 6 bädd Topview lägenhet 5202. Lägenheten ligger på översta våning med mountainview & högt i tak med stora fönster som ger fantastisk utsikt mot backarna.
Storlek: 75m2
Sovrum: Sovrum 1: 1 dubbelsäng. Sovrum 2: 2 våningssängar.
Badrum: dusch, WC.
Kök: I köket finns bland annat: spis, kylskåp, frys, diskmaskin, mikro.
Övrigt: TV. Lägenheten har öppen gasspis, vilket inga andra lägenheter i Skistar Lodge Hemsedal Suite har. Set med lakan & handduk ingår (även uppbäddning). Skidskåp med skotork finns i huset. I lägenheten finns en garderob med element.
Bokar ni denna enhet så ingår även toalettpapper, diskmaskinstabletter, handdiskmedel, disktrasa & torkhandduk.
För att kunna boka denna boenheten måste gästen fyllt 18 år. Alla i sällskapet måste ha fyllt 18 år. Gäller ej barn i målsmans sällskap.


















