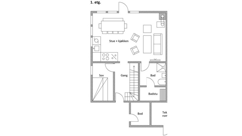
Fin, stilfull stuga (del av parstuga) allrum i öppen planlösning med köksavdelning, soffa och öppen spis. 4 sovrum och 2 badrum.
Storlek: 130 m2
Kök: I köket finns bland annat: kylskåp med frys, spis, mikro, diskmaskin.
Kök: I köket finns bland annat: kylskåp med frys, spis, mikro, diskmaskin.
Sovrum:
Sovrum 1: 1 dubbelsäng eller 2 enkelsängar.
Sovrum 2: 1 dubbelsäng eller 2 enkelsängar.
Sovrum 3: 1 familjesäng med 150 cm bred underslaf.
Sovrum 4: 1 familjesäng med 150 cm bred underslaf.
Badrum:
Sovrum 2: 1 dubbelsäng eller 2 enkelsängar.
Sovrum 3: 1 familjesäng med 150 cm bred underslaf.
Sovrum 4: 1 familjesäng med 150 cm bred underslaf.
Badrum:
Bad 1: dusch, WC, bastu
Bad 2: dusch, WC, bubbelbad
Övrigt: TV, braskamin. 1 barnstol och 1 barnsäng.
Alla inkvarteringar i Hemsedal är självhushåll (undantag för hotell) så glöm inte att ta med lakan & handduk om ni inte bokar till detta. I alla lägenheter så finns det disktrasa & diskhandduk samt några diskmaskinstabletter vid ankomst. Det ingår alltså inte toalettpapper, handdiskmedel & diskmaskinstabletter. Detta får man ta med själv.
Viktigt att veta
Tillåtet med husdjur, rökning är inte tillåtet.
För att kunna boka denna boenheten måste gästen fyllt 25 år. Alla i sällskapet måste ha fyllt 18 år. Gäller ej barn i målsmans sällskap. Den som är ansvarig för bokningen måste bo i enheten under hela uppehållet.























