Enkla lägenheter med ski in/ski out läge i Hemsedal Skisenter. Gångavstånd till barnområdet, mataffär, längdspår, skiduthyrning och sportbutik. Bakkens lägenheter ligger mittemot Hemsedal Fjellandsby, med restauranger, after ski och nattklubb.
Populärt resmål för ungdommar. Detta boende passar för kompisgänget under helger, påsk och nyår. Störande ljud från afterski/nattklubb och uteliv kan förväntas under dessa perioder. Lägenheterna är något lyhörda.
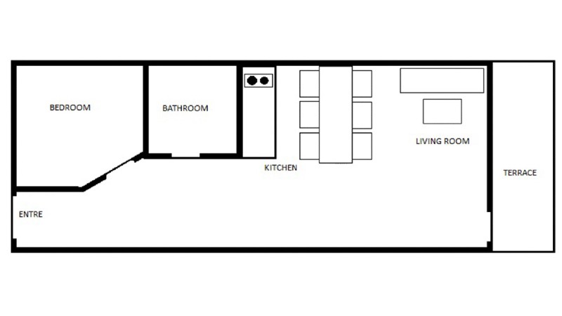
Lägenhet med öppen planlösning och liten köksdel i allrum med bäddsoffa.
Lägenhet med öppen planlösning och liten köksdel i allrum med bäddsoffa.
Storlek: 42m2
Sovrum: 1 sovrum med 1 dubbelsäng 140cm. Kramvänlig bäddsoffa i allrummet.
Kök: 2 plattor, ugn, kylskåp med frys, diskmaskin (ej micro)
Bad: 1 bad med dusch & WC.
Bad: 1 bad med dusch & WC.
Övrigt: Slutstädning ingår. Vi rekommenderar 2-4 vuxna i lägenheten. Samtliga A-lägenhter ligger i entreplan 1 eller nedre våning.
Alla inkvarteringar i Hemsedal är självhushåll. I alla lägenheter så finns det disktrasa & diskhandduk samt några diskmaskinstabletter vid ankomst. Det ingår alltså inte toalettpapper, handdiskmedel & diskmaskinstabletter. Detta får man ta med själv. Lakan & handduk ingå ej men boka gärna det som tillval eller ta med eget.
För att kunna boka denna boenheten måste gästen fyllt 18 år. Alla i sällskapet måste ha fyllt 18 år. Gäller ej barn i målsmans sällskap.
Välkommen att boka din resa under avgångar & priser













